Locations immobilières
LOCATION LOCAL PROFESSIONNEL D'UNE SUPERFICIE DE 143 M²
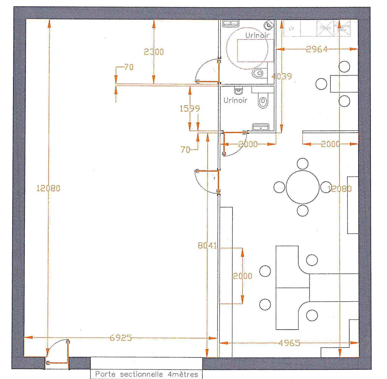
A louer local professionnel de 143 m² doté de 4 pièces principales :
hall/local/atelier de 83 m²,
bureau de 40 m²,
cuisine de 12 m²,
sanitaires doubles (dont urinoirs) de 8 m²
Situé au coeur de la commune au 4, rue des écoles à SCHIRRHEIN dans un bâtiment rénové en 2016.
Le local dispose d’une porte sectionnelle de 4 mètres et d’une porte d’accès.
Chauffage : plancher chauffant et climatisation réversible.
Loyer : 1 460 euros mensuel. Disponible au 1er mai.
Renseignements et candidature auprès du secrétariat de la mairie.
Photos du local commercial à louer
Situation du local
01-Chocolaterie.jpg
383.76 KB
Plan detaillé du local
02-PLAN-DETAILLE.jpg
313.44 KB
Bureau
03-bureau.jpg
323.81 KB
Cuisine
04-cuisine.jpg
237.65 KB
Aménagement intérieur des toilettes
06-toilettes.jpg
169.86 KB
Aménagement intérieur des toilettes
05-toilettes.jpg
210.37 KB